Rif: ADC CAPPELLI 690
ROMA
ROMA - zona Fleming
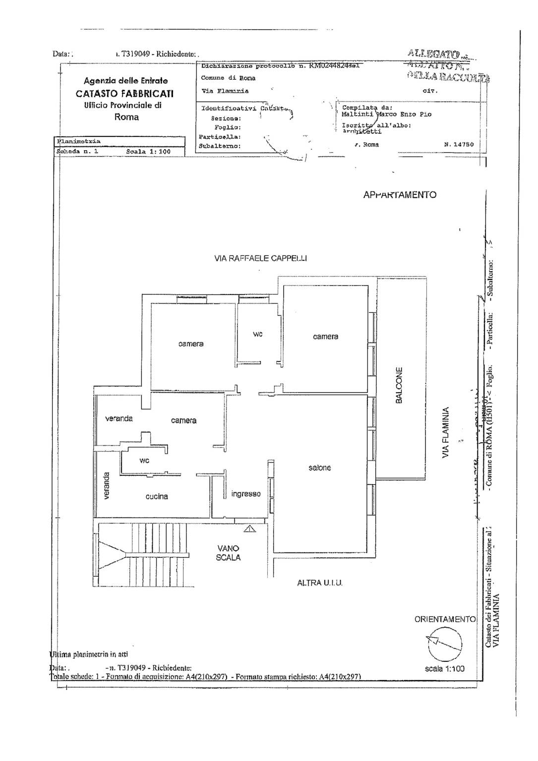
FLEMING - VIA RAFFAELE CAPPELLI: In stabile in cortina di quattro piani proponiamo la vendita di una proprietà sita al terzo piano, completamentamente ristrutturata di 134 mq commerciali con ampia balconata abitabile con affaccio aperto.
L'immobile internamente si compone di: Ingresso, salone doppio con uscita sul balcone, cucina abitabile, due camere da letto, servizio, cameretta e bagno di servizio.
Completano la proprietà una cantina ed un posto auto coperto.
L'immobile internamente si compone di: Ingresso, salone doppio con uscita sul balcone, cucina abitabile, due camere da letto, servizio, cameretta e bagno di servizio.
Completano la proprietà una cantina ed un posto auto coperto.
Consistenze
| Descrizione | Superficie | Sup. comm. |
|---|---|---|
| Principali | ||
| Immobile - 3° piano | 134 Mq | 134 Mqc |
| Totale | 134 Mqc | |








